Modernes altersgerechtes Wohnen im Energiesparhaus in Trier-Kürenz
ID: ETNBKU2002B/971753
#1階フラット #トリーア #ラインラント・プファルツ #ザールブルク・ケル #ドイツ
連絡先:
Herr Norbert Scherf
Scherf Profi Immobilien Service GmbH
Paulinstraße
54292 Trier
Tel.: +49 (0) 651 97878-0
Fax: +49 (0) 651 97878-78
Scherf Profi Immobilien Service GmbH
Paulinstraße
54292 Trier
Tel.: +49 (0) 651 97878-0
Fax: +49 (0) 651 97878-78
1階フラット トリーア ドイツ | Wohnung 2

1階フラット
€ 535 800 (≈ US$ 621 000)
DE-54295 トリーア, ハイリグクロイツ
ラインラント・プファルツ, ドイツ
連絡先
ファイナンス
€ 535 800 (≈
手数料無料 買い手/借り手向け利用可能 Anfang 2024
2022
最初の入居
部屋
部屋4
ベッドルーム3
バスルーム/トイレ1
地域
居住スペース1.135,38 平方フィート
設備
車椅子説明
Modernes Wohnen in altersgerechter Ausführung im verkehrsberuhigten Innenbereich in Trier-Kürenz.所在地
#ザールブルク・ケル
Trier- Stadtteil Kürenz - gefragter Wohnbereich zwischen Innenstadt und Universität. Die Wohnungen entstehen in einem modernen Mehrfamilienhaus in einer Nebenstraße, orientiert zum verkehrsberuhigten Innenbereich. Alle Einrichtungen des täglichen Bedarfs erreichen Sie auf kurzen Wegen. Ebenso ist eine gute Verkehrsanbindung in alle Richtungen gegeben. Den Hauptbahnhof erreichen Sie in ca. 10 Gehminuten. Der neue Edekamarkt Schönbornstraße ist ebenfalls in wenigen Gehminuten erreichbar.
設備
Moderne Eigentumswohnungen in altengerechter Ausführung im Energiesparhaus in Trier-Kürenz im verkehrsberuhigten Innenbereich .In attraktiver Lage von Trier-Kürenz entstehen neue Eigentumswohnungen in altersgerechter Ausführung mit moderner Technik (KfW 55 Standard Erneuerbare Energien ), Aufzug und guter Ausstattung.In dieser exponierten Lage entstehen attraktive Eigentumswohnungen von ca. 63 bis ca. 130 m² mit moderner Technik in altersgerechter Ausführung. Es sind eine moderne Luftwärmepumpe, Fußbodenheizung, elektrische Rollläden, Aufzug, schöne Fliesen sowie attraktive Parkettböden vorgesehen. Sie können hier noch Ihre persönliche Note einbringen.
Die Errichtung erfolgt unter Berücksichtigung moderner Energiestandards (KFW-Effizienzhaus 55) sowie einer guten Ausstattung. Die Kombination von moderner Technik und hochwertiger Isolierung führt zu sehr günstigen Heizkosten bzw. Nebenkosten.
Alle Wohnungen verfügen über schöne Balkone, Terrassen oder Dachterrassen.
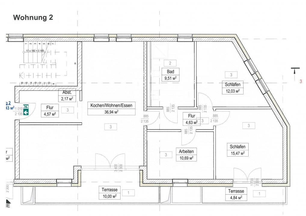
Das Angebot bezieht sich auf die Wohnung Nr. 2 - Gebäude B im Erdgeschoß
Die Wohnung besteht aus dem hellen Wohn/Essbereich von ca. 42 m² mit integrierter Küche. und Zugang auf die sonnige Terrasse. Auf Wunsch kann die Küche offen oder geschlossen gestaltet werden. An den Wohnbereich ist der separate Schlaftrakt angegliedert. Dieser besteht aus dem geräumigen Elternschlafzimmer von ca. 16 m², dem hellen Büro von ca. 11 m², dem geräumiges Kinderzimmer von ca. 12 m² sowie dem großen Bad mit Fenster von ca. 10 m². Diele, Garderobe/Abstellbereich vervollständigen das Angebot. Die gesamte Wohnfläche beträgt ca. 108 m².
Der Erwerb einer ähnlich aufgeteilten Wohnung im 1. Obergeschoß ist ebenfalls möglich.
Jeder Wohnung ist ein Abstell/Kellerraum im Untergeschoß zugeordnet.
Gleichermaßen befinden sich im Kellergeschoß die Tiefgarage, Waschräume sowie der geräumige Fahrradbereich
Es besteht die Möglichkeit Tiefgaragenstellplätze ab 27.000 EUR oder Doppelparker für 20.000 EUR zu erwerben.
Der Baubeginn ist erfolgt. Die Fertigstellung ist für Anfang 2024 geplant .
.
用途
Teilbar ab: 105.48エネルギー証書
発行日: 2022-01-20
まで有効: 19.01.2032
エネルギー・パス: BEDARF
一次エネルギー: 空気熱源ヒートポンプ
製造年: 2022
エネルギー需要: 16,80 kwh/(m²*a)
クラス: A+
まで有効: 19.01.2032
エネルギー・パス: BEDARF
一次エネルギー: 空気熱源ヒートポンプ
製造年: 2022
エネルギー需要: 16,80 kwh/(m²*a)
クラス: A+

その他
Vereinbaren Sie einen Beratungs bzw. Besichtigungstermin ! Gerne sind wir Ihnen bei der Gestaltung Ihrer Finanzierung behilflich. Auf Wunsch sowie bei entsprechender Bonität kann der Kaufpreis bis zu 100 % finanziert werden. Die Zinsen können z.B. auf die Dauer von 10 oder 15 Jahren festgeschrieben werden. Hierdurch können sich Ihre monatlichen Raten nicht verändern !Weitere interessante Kauf- oder Mietangebote finden Sie unter www.scherf-immobilien.de
州
Alter: NEUBAU責任の制限
Alle Daten haben wir vom Eigentümer erhalten. Hierfür kann unsererseits keine Gewähr übernommen werden. Das Angebot ist unverbindlich und freibleibend. Zwischenverkauf bleibt vorbehalten.














data load ...
表示